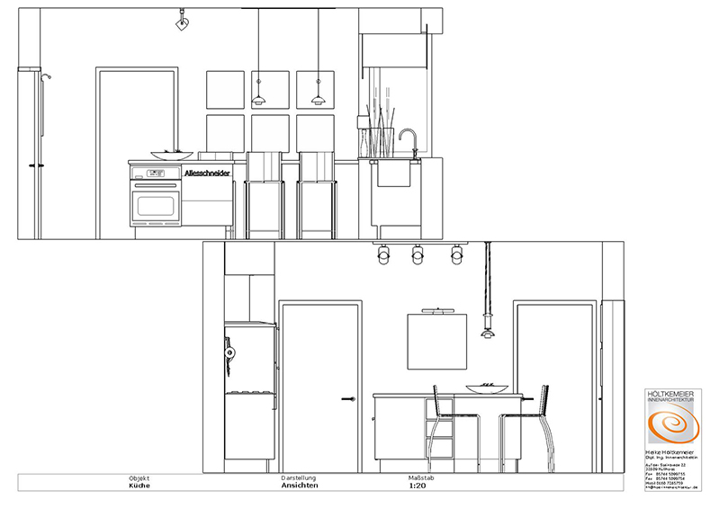
Küchen-Renovierung in Minden

Vorher

Entwurf

Dipl.-Ing.
Heike Höltkemeier

Dipl. Ing. Heike Höltkemeier

Höltkemeier

Tel.: 05744 – 50 99 755
Fax: 05744 – 50 99 754
E-Mail: hh@hoe-innenarchitektur.de

Innenarchitektur

Höltkemeier InnenArchitektur
Auf der Steinbrede 22
32609 Hüllhorst